敷地面積 -㎡
建築面積 -㎡
延床面積 -㎡
スクエア型に「白」・「黒」を基調としたモダンな外観。心地よい陽の光をたっぷりと降り注いでくれる開放的な大きな窓が特徴のリビング。間接照明の穏やかな光と落ち着いたカラーコーディネートで大人な空間に仕上げた寝室。全体的に室内を白、黒、グレーのシックなトーンでまとめ、床はスタイリッシュなタイルにしているので、まるでホテルにいるような上質で贅沢な暮らしを堪能できます。
また、本来は役割の違うリビングとダイニング・キッチン。こちらのモデルハウスではリビングとダイニング・キッチンの間に大きな窓を入れることでお互いを視野に捉えつつ空間を切り離しております。これにより一体感を得ながらもキッチンの音や臭いを気にすることなくリビングで寛ぐことができます。意識的にゾーン分けをすることでそれぞれの違った魅力が引き立ち、また家族一人ひとりの「個」が尊重されることで、心から落ち着ける最高の安らぎの場になると思うのです。
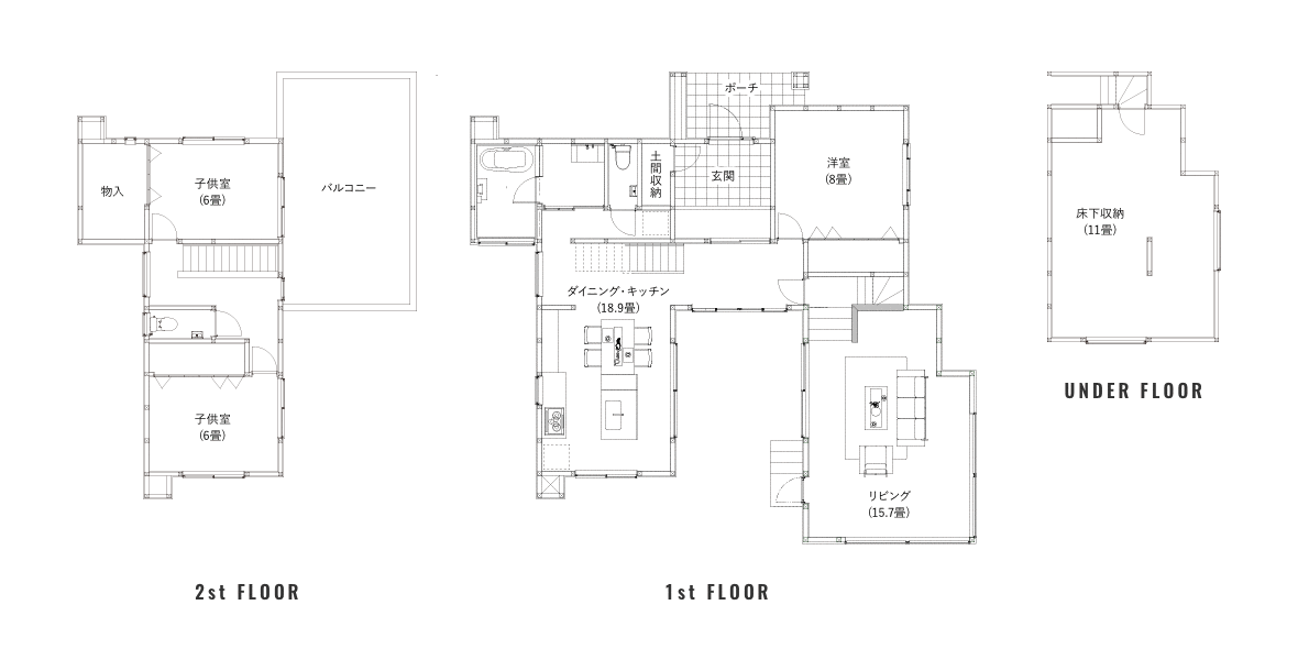
また、こちらのモデルハウスで特徴的なのが収納スペース。リビングの下を高さ140センチ以内の半地下にするこで建坪に入れずに約14畳ほどの広いスペースを設けることができました。これにより無駄無く有効的に収納庫を確保しています。
もちろんデザイン性だけでなく、長く安心して快適な暮らしをすごしていただけるように家の耐震強度にも力をいれています。外回りに「面材耐力壁」 内部に筋交いの耐久壁を採用することで地震に対する強度を上げています。また断熱効果・防音効果にもつながるので家中どこでも快適に暮らせる室内環境を実現しております。
アイワークスでは高いデザイン性・快適性・施工性に重点におき、他とは違うワンランク上の住空間を提供しております。ぜひ一度、展示場に足を運んでいただき、アイワークスならではの贅沢な空間を体感しにいらしてください。
〒370-0421
群馬県太田市粕川町208-14
0276-47-3679
受付時間 9:00~19:00 ※土日祝も対応
お電話またはフォームより、
お気軽にお問い合わせください。
0276-47-3679
受付時間 9:00~19:00 ※土日祝も対応
